Včasih je težko ubesediti, zakaj nam je nekaj všeč. Ne gre za posamezne gradnike celote, ki bi bili lepi, ampak za odnose med njimi in njihovo specifično součinkovanje. Lastnikoma stare domačije, ki je stala na strmem pobočju na robu zasavske vasi, je bila hiša enostavno všeč. V njej je bil poseben občutek zaradi svetlobe, materialov, obrtniških detajlov in lokacije. Ta občutek je bil tako močan, da sta se odločila v njej ustvariti prostor za svojo družino.

Za prenovo sta angažirala arhitekturni tandem Riba (Goran Rupnik in Janja Brodar). Objekt je bil delno vkopan, kamnita klet je nekoč služila kot hlev. V pritličju, ki je bilo delno zidano in delno leseno, so bili bivalni prostori. Načrt prenove je spoštljivo upošteval obstoječe danosti. Ko pa so naredili statično analizo objekta, so ugotovili, da je konstrukcija v kritičnem stanju in bi bila sanacija temeljev na plazovitem terenu izjemno zahtevna.
Po letih razmišljanja so se odločili za novogradnjo. Odločitev ni bila lahka, kakor tudi ne naloga za arhitekte. Kako v novi hiši ustvariti neoprijemljivi občutek stare domačije?

Prva odločitev je bila, da bo nova hiša lesena. Oblikovno se bo navezovala na svojo predhodnico in stanovalcem zagotavljala močno povezano bivanje z naravo in okolico. Zato nova hiša ni želela biti oskubljena enopotezna moderna arhitektura brez napuščev, ampak sodobna reminiscenca tradicionalne tipologije.
Smer slemena strehe je bila ohranjena. Hiša je le malo daljša in malo nižja od izvorne. Dve vzdolžni strehi, zagozdeni druga v drugo, ustvarjata duhovit dialog z grajeno krajino kompleksa domačije in celotne vasi, kjer prevladujejo prizidki in mali objekti. Hiša se zlije z njimi, a vseeno ne zanika lastne sodobnosti in premišljenega oblikovanja.

Arhitekta sta veliko pozornost namenila prostorom med zunaj in znotraj. V njih se dogaja življenje – vhodna veranda, gank, rastlinjak, napušči nad stikom objekta s terenom. V duhu trajnosti, tradicije in ponovne rabe so materiali, ki so ostali po rušitvi stare hiše, dobili novo življenje: staro kamenje iz kleti je bilo uporabljeno za gradnjo novih opornih zidov, les prvotnega objekta je bil po termični obdelavi uporabljen za leseno fasado in notranje predelne stene. Za restavriranje starega pohištva je naročnik celo izdelal komoro za termično obdelavo pred restavriranjem. Stara vhodna vrata domačije so danes vhod v rastlinjak na JV delu objekta. Rastlinjak je prostor, kjer se prepletajo dejavnosti lastnika, to so visoka znanost in ljubiteljska botanika.

Hiša odseva življenje lastnikov; sodobno in polno ambicij ter širokih horizontov, a avtentično vpeto v lokalno podeželsko okolje. Naročnika, mlada družinska zdravnica in znanstvenik, botanik, ki se na delo vozi v Ljubljano, sta hišo za svojo družino umestila v okolje, ki omogoča življenje v stiku z naravo in skupnostjo.
Ko smo bili zadnjič na obisku, nam je lastnik, ki se je na podeželje priselil iz mesta, med meketanjem koz in zvoki klavirja mimogrede navrgel: »Nič ne bi naredil drugače; tu se želim postarati.« Čeprav stare domačije ni več, je njen poseben duh ohranjen v novi. Čeprav v drugi materializaciji, je hiša ohranjena.











Ime projekta: Hiša Pr’ Matičk
Avtor projekta: RIBA arhitekti (Janja R. Brodar, Goran Rupnik, Manica Lavrenčič)
Lokacija: Zasavje
Leto načrtovanja: 2016–21
Leto izvedbe: 2022
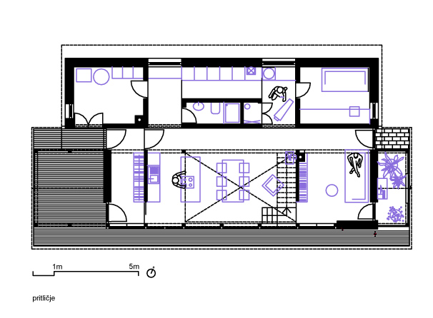
Površine skupaj: 170 m² neto
Pritličje: 100 m²
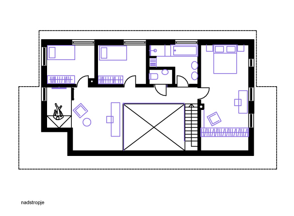
Nadstropje: 70 m²
Parcela: 463 m²
Pozidana površina: 151 m²
Gradbene konstrukcije: Proding inženiring d.o.o.
Glavni izvajalec gradbeno-obrtniških del: Ekoart d.o.o.
Foto: Janez Marolt (interier), Boštjan Seničar (zunanjost)
Napisal: Matevž Granda



