»There is a crack
there is a crack
in everything
that is how the light gets in.«
– Leonard Cohen
Angleži imajo besedo, ki je ne znam čisto dobro posloveniti. Immediacy. V neposrednem prevodu bi bila to »takojšnjost«, a v resnici leži bolj nekje med »neposrednostjo« in »prisotnostjo«. In ta beseda nekako povsem zajame tisto neoprijemljivo lastnost vseh teh obmorskih mediteranskih mest, ki nikakor niso grda, obenem pa tudi ne, hmmm, »lepa« ni prava beseda, ki niso »razglednična«. S sodobnim neologizmom bi se verjetno reklo »instagramabilna«, a na Instagram ljudje v resnici dajejo že vse mogoče, podobe so lahko ironično kul, pretenciozno nepretenciozne, namenoma #nofilter, tako da se bom raje držal »nerazgledničnosti«. Kajti Vodnjan pri Pulju je ravno to – ravno malo preveč razklopotan, malo premalo poštiman, na ne ravno toliko impozantnem griču kot kako drugo istrsko mestece (s svojim filmskim festivalom), da bi bil zares razgledničen. Odkrhnjeni vogali nekajstoletnih hiš so pokrpani z opeko, tu in tam stoji novogradnja brez fasade (in s snežno belimi novimi plastičnimi okni in vrati), grafiti so, pa tudi cel kup muralov različnih stopenj dovršenosti, ki se pnejo čez celotne bolj ali manj slepe fasade. Po večini ulic vozijo avtomobili. Seveda, so tudi tiste otoško ozke vijuge, a skoraj za vsakim vogalom lahko ravno tako srečaš zastavo ali landroverja, ki se previdno pomika naprej. Obenem ni opasan z jasnim robom, mogoče spominom nekdanjega obzidja, ki zna tako jasno zarisovati konture bolj stereotipno »istrskih« mestec. Na vse strani se neelegantno razleza v pokrajino, kot kakšen prileten gospod, ki se mu že malce poznajo leta. Torej, ni tipična lokacija za nakup stare obmorske hiše.
In vendar.
Nekdo si ga je izbral točno za ta namen.

Po pravici povedano, o tem, ali je bilo kaj od tega gostobesednega uvoda tudi razlog za to odločitev, nisva govorila. Ni prišlo na vrsto. Vsaj ne s toliko besedami.

Na vrsto pa je prišla na primer knjiga Arta Paasilinne Najboljša vas na svetu. Govori o samotni vasi na Finskem, kjer so ljudje tako odmaknjeni od sveta, da spregledajo celo njegov konec. Medtem ko se drugje zgodi tretja svetovna vojna in civilizacija neslavno potone, New York zalije ocean in se sosednja Rusija zravsa s komerkoli že, se v najboljšo vas na svetu postopoma priseli pisana druščina ljudi, ki so slišali glas o tej vasi posebnežev. Čudakov, ki se vozijo z vprežnimi vozovi, sami pridelujejo hrano ter se o vsem, kar se tiče skupnega, sporazumno dogovarjajo pod vodstvom neformalnega glavarja. Mislim, da je bil kovač, nisem pa prepričan. Na mizi je bila steklenica medice. In ni bila več polna. (Tudi zdaj je, ker sem eno dobil za na pot. In tudi ni več polna.) Skratka, v vas pride veganska hipijevska komuna, ki se loti permakulture, za hip jo odkrijejo celo novinarji (a se jim nihče ne posveti, tako da hitro odidejo), in tako naprej in tako naprej. Na koncu preostanek sveta mine, najboljša vas na svetu pa tega niti ne opazi.


OK, nazaj k »neposredni prisotnosti«. To, da Vodnjan ni razgledničen, ne pomeni, da ni slikovit. Če nič drugega, 141 analognih fotografij iz prejšnjega vikenda priča o nasprotnem. A pogled, ki se ponuja, je drugačen. Vsi vdori sodobnosti ne puščajo manevrskega prostora ne za nostalgijo, ne za romantiziranje, ne za kozmetične popravke v Photoshopu. Mimoidoči so staroselci, priseljenci in prišleki od predlani. Oblečeni so v oblačila iz Lidla in Zare ali v Calvina Kleina in Off-White. Otroci se veselo igrajo po ulicah, a srečujejo tudi avtomobile. Vodnjan obstaja tam nekje vmes. Ni vas, ni mesto, ni ne star ne nov. Samo tam je. In vse to drugo ga niti ne zanima.


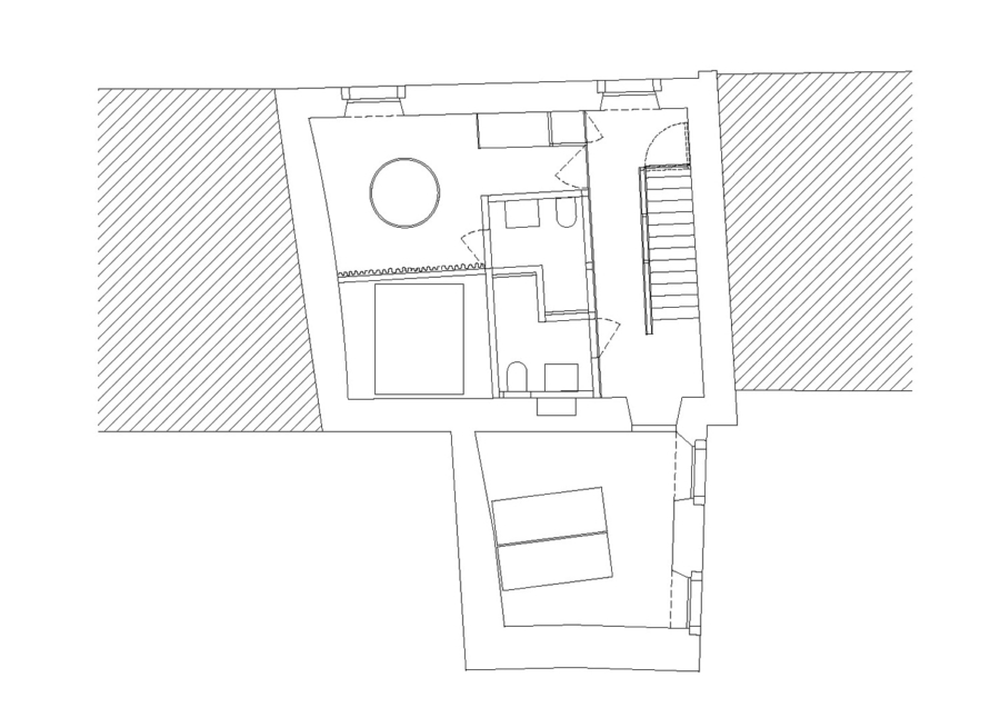
No, in v tem Vodnjanu je bila pred kratkim prenovljena hiša. Razmeroma navadna vrstna hiša v ulici zraven mestnega trga (čeprav je s štirimi etažami malce višja od povprečja). Marsikje bi o njej zapisali, da je bila »prenovljena z ljubeznijo«. A v resnici bi bila bolj primerna oznaka »prenovljena z radovednostjo«. Radovednostjo, ki si vzame čas, da brska po ruševinah in obrača kamne, odpira omare, najde škatle z desetletji korespondence, ki jo je imela prejšnja lastnica s svojim možem, ko je delal v Nemčiji. Ki je nežna in natančna. Hkrati pa tudi z radovednostjo, ki je otroško drzna, ki si upa vprašati: »Kaj pa, če odstranimo vse omete, da vidimo, kaj je spodaj?«, »Kaj pa, če vržemo ven strop v pritličju?«, »Kaj pa, če zamešamo tale prah, ki je ostal pri brušenju teraca, noter v maso za žbuko?«, »Kaj pa, če tale ravni del strehe kar potlakujemo z opeko, pa imamo teraso?«
In obenem se hiša ponuja tudi radovednosti obiskovalca.

Električna napeljava ni skrita za novimi ometi. Staroveški s tekstilom opleteni kabli plezajo po stenah in stropovih, kot da bi jih narisal kateri izmed treh članov podmladka. Kdor bi želel, bi lahko detektivsko sledil toku od svojega polnilca za telefon dol, dol, po prostorih in stopnicah, čisto do omarice v pritličju, skupaj z ostalimi inštalacijami v nekdanjem dimniškem jašku.




Ko se vzpenjaš po stopnicah, srečaš (nedokončan) rob lesene plošče. Plasti konstrukcije, izolacije in tlaka so zložene druga na drugo, kot bi risba iz načrta skočila s strani v življenje. Če to zveni neestetsko, ni. Lesena konstrukcija, lesena (oz. celulozna) izolacija in leseni pod se zdijo prej kot zelo natančno profiliran detajl kot pa nedokončan zaključek. Seveda bosta arhitekta to na neki točki »dokončala«. A za zdaj ostaja kot droben trenutek, kjer ti avtorja še razlagata: »Tole smo pa tako naredili.«


Predvsem pa so tu vrata. V tej hiši je veliko vrat. Nekatera so očitna, nekatera so skrita, nekatera so vrata za vrati. Bolj ko se vzpenjaš po stopnicah skozi nadstropja, več jih je. Ne vem, ali ste imeli tudi vi stare starše, ki so živeli v hiši s podstrešjem, polnim neuporabljanih sob. Moji so. Kot otrok sem pri njih preživljal dele poletnih počitnic. Kadar je stara mama šla krmit kokoši, sem se odkradel po stopnicah gor in šel kradoma odpirat vrata v te prostore. Še sam ne vem, zakaj kradoma. Nobene prepovedi ni bilo. Sobe so bile samo tako odmaknjene, da so se zdele skrivnostne in ne čisto dovoljene.

Podoben občutek sem dobil, ko sem se vzpenjal po stopnicah v Vodnjanu. Vsakič. Tudi po vodenem ogledu hiše, tudi po tem, ko sem že nekajkrat spal tam.
V zbirki pesmi za otroke Daneta Zajca Abecedarija je pod črko V pesem Vrata. Takole gre:
Za velikimi vrati so še ena vrata.
Za še enimi vrati so še ena vrata. Manjša.
Za manjšimi vrati so še ena vrata. Še manjša.
Za še manjšimi vrati so najmanjša vrata. Najmanjša.
Za najmanjšimi vrati so še ena vrata.
Ta vrata so vratca.
Za vratci je vrt.
V vrtu je manjši vrt.
V manjšem vrtu je še manjši vrt.
V še manjšem vrtu je najmanjši vrt.
V najmanjšem vrtu je vrtec.
V vrtcu je roža. Ena sama dišeča.
Ta roža je zate. Najlepša in največja.
V Vodnjanu so zadnja vrata okno. To okno vodi na streho. Po strehi splezaš na majhno teraso. Ni vrta in rože. Se pa pogled razteza na vse strani, prek Istre in morja. In Vodnjana.

Ko sem bil tam, so bile čez glavno ulico napete vrvi z obešenimi raznobarvnimi trakovi. Ko sva sedela za kuhinjsko mizo in čakala, da se pogrejejo sarme, sem opazil, da senca sosednjega stola pleše v raznobarvnih odtenkih, ki se jih ne bi sramoval niti kakšen disko klub iz osemdesetih, ali pa prostorska instalacija v berlinski galeriji danes. Sence rumene, zelene, rdeče in modre barve so šle sem in tja, vsaka po svoje, in skoraj je škoda, da še nimamo elektronskega papirja, ki bi nam omogočal, da bi poleg vseh fotografij objavili tudi kratek videoposnetek tega prizora. Izkazalo se je, da se je sonce od vsakega izmed teh trakov odbijalo drugače, padalo skozi na ulico odprto okno in metalo gručo senc pod mizo. Lepo je bilo.




Zvečer sem stopil iz hiše na dvorišče na cigareto in mislil, da slišim dež. Prepričan sem bil. A ni bilo tako.
Potem ko so se vsi umaknili z ulic, so raznobarvni trakovi šelesteli v vetru.



Napisal: Bor Pungerčič
Arhitektura: Nina Granda, Matevž Granda
Realizacija: 2018 – 2020
Foto: Jana Jocif
Površine:
Pritličje: 52m2
1. nadstropje: 33m2
2. nadstropje: 45m23. nadstropje: 45m2
Strešna terasa: 8m2
Skupaj: 183m2
Dobavitelji notranje opreme:
Stua, Axor, Rex Kralj, Muuto, Moooi, Iittala, Rika
Prispevek je bil prvič objavljen v Outsider #21: Sožitje



